Студія у ЖК Еллада
Студія у ЖК Еллада
ціна: 41800 $
Характеристики
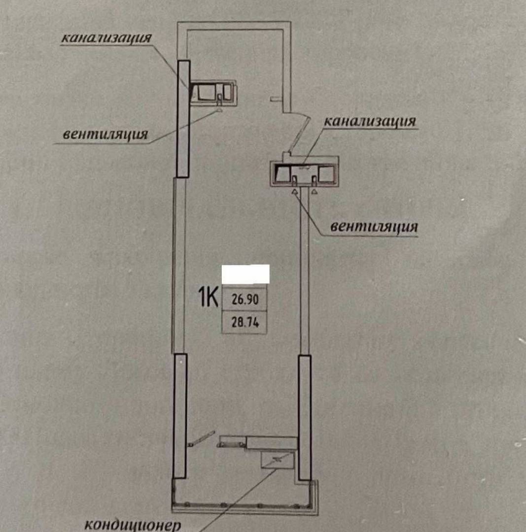
Общая
28.74 м2
Этаж
20
Этажность
26
Контакти менеджерів з продажу
-
вул. Ак. Корольова, 33,
Запит інформації по об'єкту
На мапі

Опис
Продаж квартири в новому сучасному житловому комплексі на вул. Генуезька, одна з найпрестижніших локацій Аркадії. Квартира площею 29 кв.м, розташована на 20-му поверсі з панорамним видом на море. Стан від будівельників, вільне планування – реалізуйте будь-який дизайнерський проект. Локація ідеальна для життя та інвестицій: поруч море, парк, ТРЦ, супермаркети, ресторани, зручна транспортна розв'язка. Прекрасний варіант як для свого проживання, так і для орендного бізнесу. Телефонуйте.






